Archivo de Arquitectura de la Escuela Técnica Superior de Arquitectura de la UPV/EHU

Cultura arquitectónica del País Vasco ofreciendo investigación especializada en la documentación de la arquitectura y urbanismo del País Vasco.

Miguel Garai

(1936-2023)

El archivo del estudio de arquitectura de Miguel Garai, depositado en la actualidad en el AARR- Archivo de Arquitectura de la Escuela Técnica Superior de Arquitectura de la UPV/EHU, cuenta con tres tipos de documentación. Planos colocados en tubos, que en número de 76 ocupan un total de 12 metros lineales (13). Documentación digital con una cronología que va desde 1959 (proyectos de colaboración en el estudio de Luis Peña Ganchegui) hasta 2010-2011 (concurso de ideas para el proyecto de reforma de fachadas de la Facultad de Informática UPV/EHU). Y finalmente maquetas que corresponden a dos épocas, la del estudio en activo -entre las que destacamos las maquetas de la Escuela Técnica Superior de Arquitectura de la UPV/EHU- y las maquetas que se realizaron sobre su obra con motivo de la exposición de la que fue homenaje al final de su etapa como arquitecto docente entre diciembre de 2014 y enero de 2015. Entre las que destacamos las de la Ikastola Txingudi y la reforma y ampliación de la Villa Yeyette en Donostia-San Sebastián. Debemos así mismo de reseñar la donación de su biblioteca personal cerca de 300 libros que ocupan una superficie de 10 metros lineales.

Los alrededor de 73 proyectos en los que intervino durante su vida profesional, se encuentran digitalizados, cada uno de ellos en su carpeta correspondientes, poseyendo una abundante documentación. Memorias, planos de situación, plantas de los edificios, alzados, sketches, fotografías de construcción y fin de obra, presupuestos, diseño de interiores, perspectivas, fotografías de maquetas…etc. Escaneando algunos de ellos (los más destacados) a gran resolución y otros (los menos importantes) a una resolución media o baja. Encontrándose dichos materiales en estos momentos en fase de divulgación a través de la plataforma digital que hemos creado.

Miguel Garai nace en San Sebastián en Agosto de 1936, aparejador por la Escuela de Barcelona en 1957, colabora en sus inicios profesionales con el estudio de Luis Peña Ganchegui (1959-1971). Siendo dicho trabajo una importante motivación para seguir estudiando y graduarse como arquitecto de “vocación tardía” a finales de los años 60, en la primera promoción de la recién creada Escuela de Arquitectura de la Universidad de Navarra en Pamplona, titulándose en la Escuela de Barcelona en 1970 (14).

Tras la realización de sus iniciales obras como arquitecto Casa Urteaga (1972-74) en Idiazábal (Gipuzkoa), Casa Modrego (1974-75) en Donostia- San Sebastián, fue compaginando los aspectos profesionales con su creciente interés por el debate, la cultura y la crítica arquitectónica que tuvo un importante momento en el último cuarto del siglo XX (15). Teniendo una excelente ocasión para desarrollar dicha afición, al ser responsable junto con José Ignacio Linazasoro de la Comisión de Cultura del COAVN en Gipuzkoa (1973-78). Se llevaron a cabo durante este tiempo las conocidas ediciones de las Semanas de Arquitectura en la capital guipuzcoana durante los años 1973-1974-1976, donde tuvieron la oportunidad de acudir destacadas figuras arquitectónicas del ámbito nacional e internacional (16). Dichos encuentros se puede considerar el germen de la puesta en marcha y funcionamiento de otras nuevas iniciativas (17).

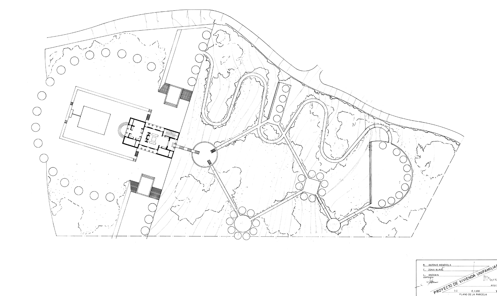
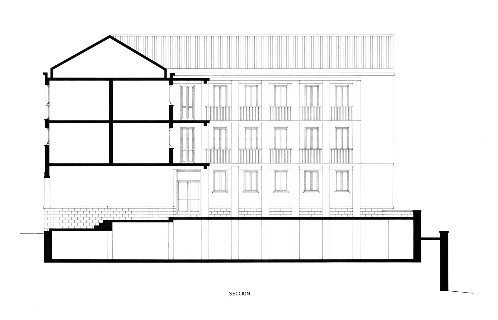
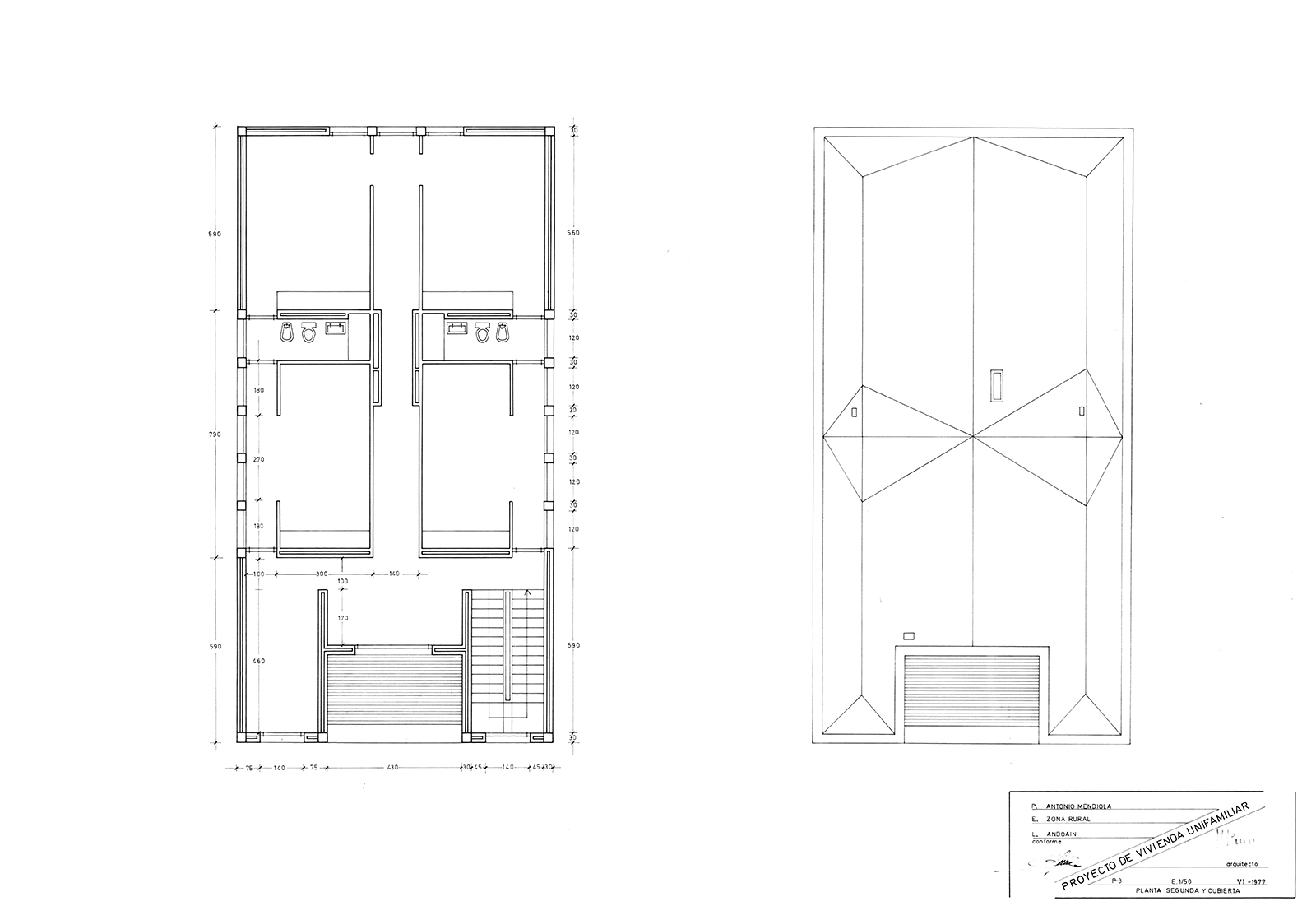
Las obras posteriores realizadas por Miguel Garai situadas mayormente en territorio guipuzcoano, algunas de ellas también en colaboración con José Ignacio Linazasoro: Ikastola Txingudi de Irún (1974-1977), Fábrica Lasquibar en Motrico (1975-1976), Viviendas en Mendigorria Navarra. (1978-80), Casa Mendiola en Andoain (1978-79), así como algunos de sus múltiples proyectos como el Frontón de Ordizia (Gipuzkoa) 1980, el Concurso de la Plaza de Aretxabaleta 1982 (Guipuzkoa), la Plaza de Atotxa en San Sebastián (1985)… mantienen unas constantes de arquitectura postmoderna propia del ambiente cultural del momento, que enmarcan el contexto en el que se realizaron, siendo quizás la Escuela de Arquitectura que luego trataremos, una de las obras más significativas que da fin a este período (18).

La tarea en su estudio de arquitectura, la compaginó durante toda su carrera profesional con la dedicación docente e investigadora en la Escuela Técnica Superior de Arquitectura de la que fue profesor de proyectos desde 1978 a 2006, leyendo su tesis doctoral “Arquitectura y límites” en 1996. Director del Departamento de Arquitectura (2000-2004), ha participado en diversas exposiciones tanto nacionales como internacionales, destacando su participación en la Trienal” de Milán en 1979 o en la exposición realizada en Barcelona en 1980 titulada “La arquitectura racional en España”. Ha sido miembro de diversos jurados, como el correspondiente al “Premio Europeo para la Reconstrucción de la Ciudad” de Bruselas y entre otras actividades, ha impartido numerosas conferencias. Su docencia e investigación en el mundo universitario le llevó a publicar una serie de libros entre los que destacamos, su colaboración en la obra La casa en Navarra (1976-78), “Arquitectura textil” (2000), “Las letras/Hizkiak. Una interpretación del mundo, hipótesis desde el euskera y el espacio” (2014). (19).

El carácter y personalidad de Miguel Garai formada entre otros componentes por su serenidad, energía, vitalidad, exigencia y autocrítica… llevaban a un replanteo constante de ideas arquitectónicas, poseyendo una destacada sensibilidad formal… aspectos todos estos que marcaron de forma importante, su acción tanto profesional como educativo-docente (20).

La etapa final de su carrera arquitectónica, la ha desarrollado en el estudio BGM con Santos Barea y Fernando Mora, realizando obras y proyectos en un amplio período de tiempo que va desde las Viviendas de protección oficial en Hernani en 1995 a la vivienda Momotegi en Oiartzun 2009-2011. Marcando una clara separación con respecto a la arquitectura realizada en la etapa anterior, creando unos nuevos caminos intelectuales de pensar y hacer. Obras como la Rehabilitación de la Villa Yeyette (primera sede de la Escuela de Arquitectura en Donostia- San Sebastián) 2004-2006, la vivienda unifamiliar en Igueldo 2002-2006, el envolvente para Microdeco en Ermua 2005-2006 o la Vivienda Markelin en Donostia-San Sebastián (2007) nos ilustran dicho cambio (21).